本文へジャンプ




弊社の羽柄ラインは

「人ができることは人でやり、

械がやったほうが早い仕事は機械に」


という考えで開発しました 

 

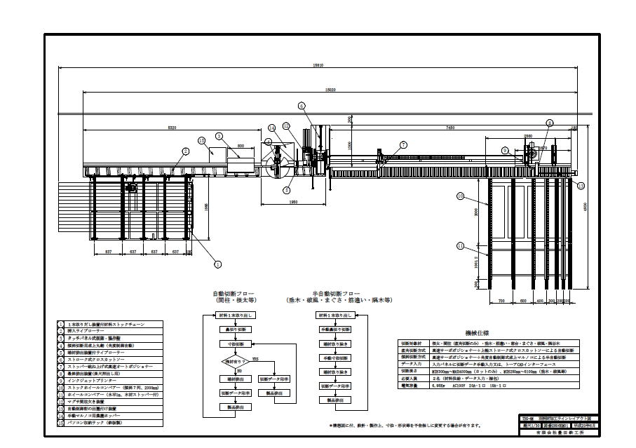
具体的には、垂木・破風・筋違い・隅谷木等の

斜め切断のみ
人手で行います



もちろん、材の流れ・角度・切断位置等は自動制御されますので、

人は目の前に流れてきた木を切断するだけです



羽柄では間柱・根太・窓台等の

直線カットのみの材も多数有りますが

本機はこれらの直線カットは全自動で高速カットします



その他、番号印字・垂木軒墨入れ等はすべて

全自動で行われます



加工能力は全自動機以上、価格は1/3



これが豊田鉄工所の羽柄加工機です

弊社の羽柄ライン仕様書・図面をPDF形式にて御覧いただけます

はやりたいけど、機械が高くて採算が合わない」
                             
  と思われていませんか?

許L田鉄工所
羽柄新ライン図面
       (PDF)
許L田鉄工所
羽柄ライン切断性能仕様書
            (PDF)
許L田鉄工所
羽柄ライン一般仕様書
         (PDF)
TOP